Property Type
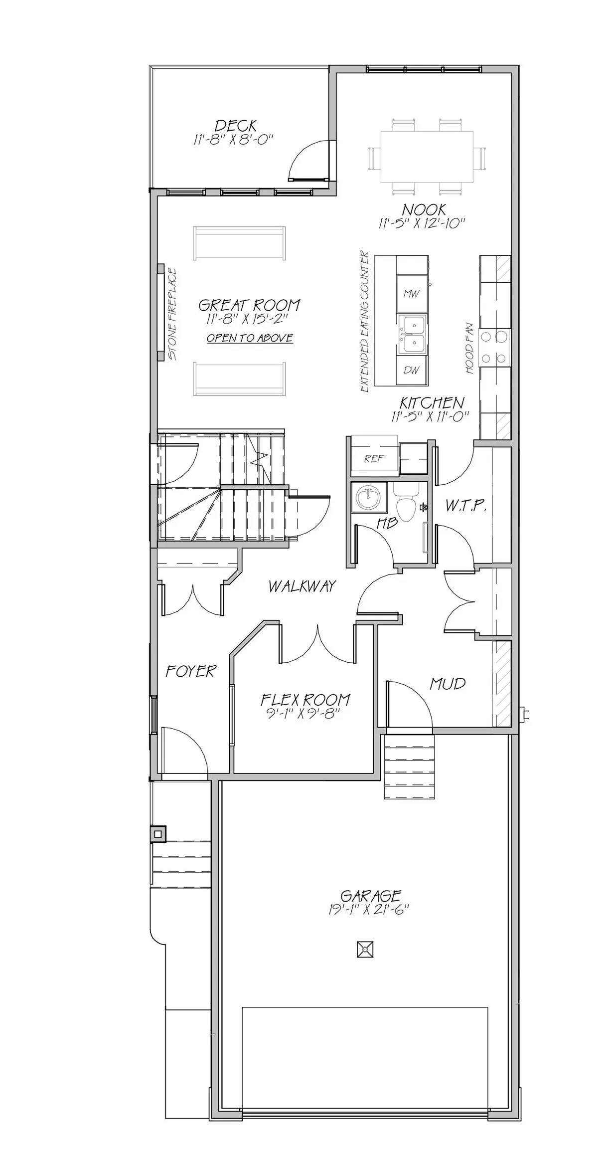
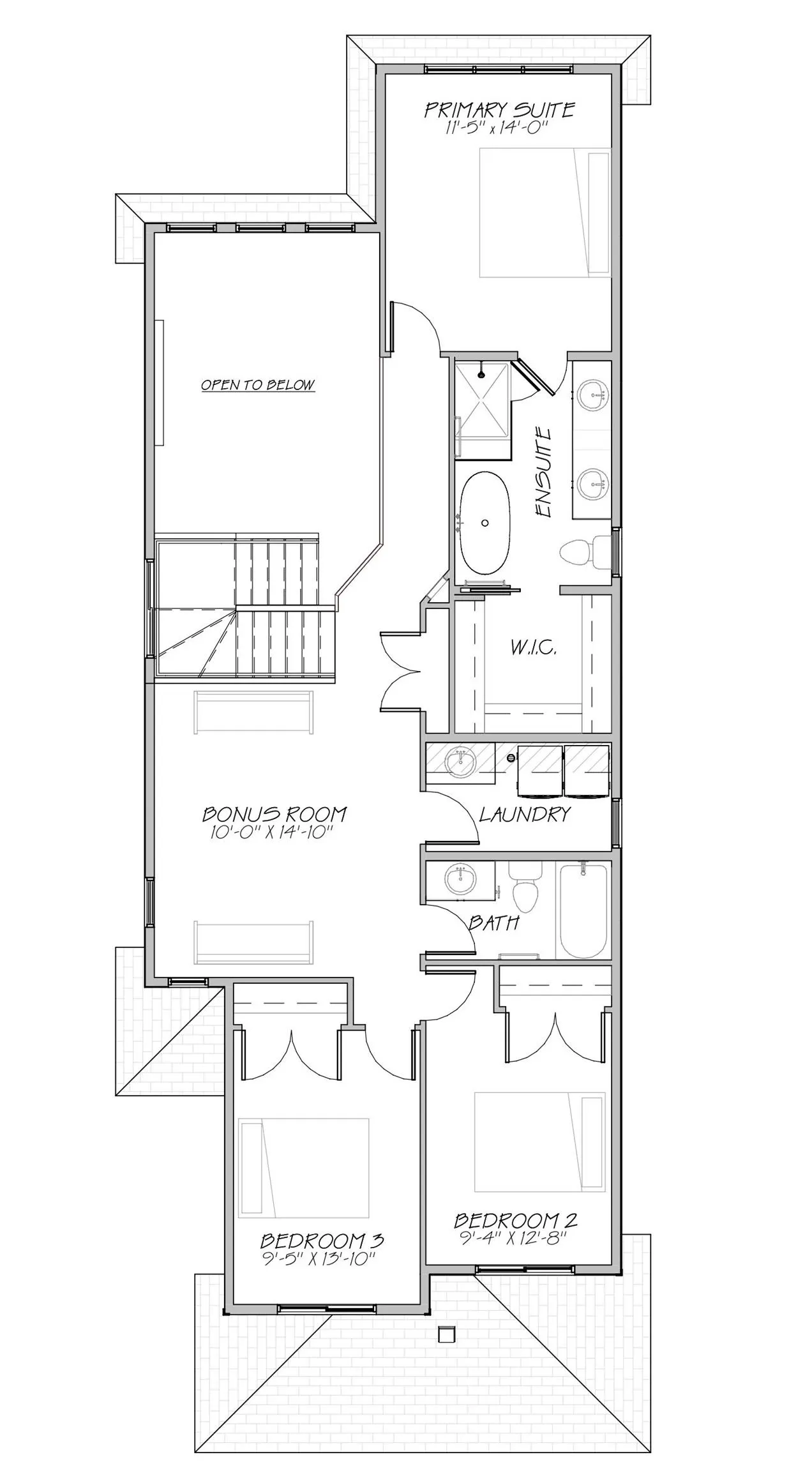
House, 2 Storey
Parking
Double Garage Attached 2 garage, Double Garage Attached
MLS®
E4461674
Size
2070.02 sqft
Basement
Full,Unfinished, Unfinished
Listed on
-
Lot size
-
Tax
-
Days on Website
-
Year Built
2025
Maintenance Fee
-
